Футурис №493

Цена строительства от 4 500 000 ₽* * Стоимость не является окончательной
Заявка на консультацию
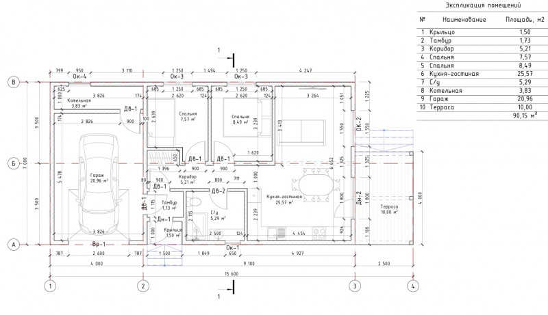
  • Общая площадь 90 м2
  • Длина 15.6 м
  • Ширина 7 м
  • Количество этажей 1
  • Подвал Нет
  • Мансарда без мансарды
  • Гараж Да
  • Терраса Да
  • Проживание Круглогодичное
  • Количество комнат 3
  • Количество спален 2
  • Количество санузлов 1
  • Вид проекта дом
  • Застройщик МоноЛит
  • Архитектурный стиль Классический
  • Крыша Двускатная
  • Можно купить домокомплект Да
  • Модульный тип строения Нет
Планировки
Описание проекта

Дом "Футурис" — это воплощение инновационных технологий и продуманного дизайна. Построенный из энергоэффективных СИП-панелей, он сочетает в себе быстроту возведения, экологичность и высокую теплоизоляцию, делая проживание комфортным в любое время года.

Планировка и интерьер:

  • Просторные комнаты: Две уютные спальни с оптимальной звукоизоляцией создают приватные зоны для отдыха.
  • Современная кухня-гостиная: Светлое объединенное пространство с зоной приготовления пищи и отдыха, оформленное в стиле минимализма. Панорамные окна и выход на террасу усиливают связь с природой, наполняя интерьер естественным светом.
  • Терраса: Идеальное место для летних обедов, вечерних посиделок или утреннего кофе на свежем воздухе.
  • Тамбур: Практичная буферная зона, защищающая жилые помещения от холода и уличной пыли.
  • Встроенный гараж: Удобство для хранения автомобиля и дополнительного места для хранения.
  • Совмещенный санузел: Рациональное использование пространства без ущерба для комфорта, с современной сантехникой и эргономичной планировкой.
  • Высокие потолки (2.8 м): Создают ощущение простора и воздушности, усиливая эффект современного дизайна.

Технические особенности:

  • Отдельное техническое помещение: Для размещения котла, бойлера или систем "умного дома", что обеспечивает безопасность и легкий доступ к коммуникациям.
  • Качественные окна и входная дверь: Металлопластиковые стеклопакеты с шумои теплоизоляцией, усиленная дверь с надежными замками — залог безопасности и энергосбережения.
  • Двускатная крыша: Классическая форма с современными материалами (например, металлочерепицей) обеспечивает надежную защиту от осадков и гармонично вписывается в архитектурный облик.
  • Стильное крыльцо: Аккуратная входная группа с навесом и отделкой, повторяющей фасад дома, завершает образ и добавляет уюта.

Преимущества технологии СИП:

  • Быстрота строительства (от 2–3 недель).
  • Высокая энергоэффективность: снижение расходов на отопление до 50%.
  • Прочность конструкции: устойчивость к нагрузкам и деформациям.
  • Экологичность: безопасные материалы и минимум отходов при монтаже.

Дом "Футурис" — это идеальный выбор для тех, кто ценит современный стиль, практичность и заботу о ресурсах. Его лаконичные формы, продуманная планировка и технологичность делают его не просто жильем, а инвестицией в комфортное будущее.

Стоимость домокомплекта 2 510 000 рублей

Вас может заинтересовать
Вас может заинтересовать

Выбор местоположения

Задать вопрос / написать нам

E-mail: domgis@mail.ru

Мы свяжемся с Вами в течение дня.

Тех. поддержка
Предмет обращения:
Тукущая страница

Мы свяжемся с Вами в течение дня.

Уведомление
Предмет обращения:
Тукущая страница
Обратный звонок
Обратный звонок
Выберите ваш город
Пожаловаться

Объявление опубликовано.
Изменения сохранены

Период публикации - бессрочный, при условии подтверждения актуальности каждые 50 дней. Уведомления будут отправляться на Вашу электронную почту.

Выберите причину снятия с публикации

Снятые с публикации объявления не участвуют в поиске и недоступны для подробного просмотра.

Для повторной публикации нажмите «Вернуть в публикацию»