Классик №490

Цена строительства от 4 700 000 ₽* * Стоимость не является окончательной
Заявка на консультацию
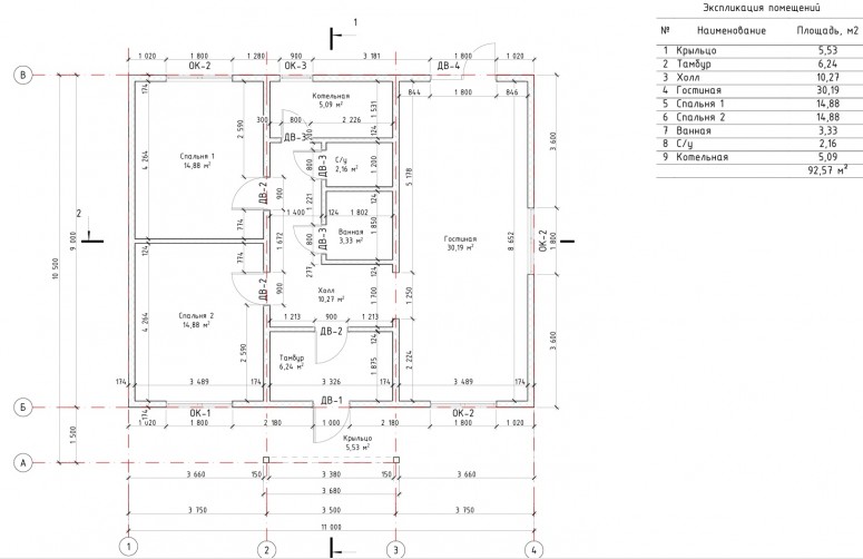
  • Общая площадь 87 м2
  • Длина 10.5 м
  • Ширина 11 м
  • Количество этажей 1
  • Подвал Нет
  • Мансарда без мансарды
  • Гараж Нет
  • Терраса Нет
  • Проживание Круглогодичное
  • Количество комнат 3
  • Количество спален 2
  • Количество санузлов 2
  • Вид проекта дом
  • Застройщик МоноЛит
  • Отделка фасада Обшивка деревом
  • Крыша Вальмовая
  • Можно купить домокомплект Да
  • Модульный тип строения Нет
Планировки
Описание проекта

Идеальное сочетание классической эстетики, функциональности и современных технологий  

Дом "Классик" — это уютное и практичное жильё, построенное по технологии СИП-панелей. Проект воплощает традиции классической архитектуры с акцентом на комфорт, энергоэффективность и долговечность. Благодаря использованию СИП-панелей дом отличается быстрыми сроками возведения, отличной теплоизоляцией и экологичностью.  

Архитектура и экстерьер

  • Классический стиль: симметричные формы, сдержанный декор и гармоничные пропорции.
  • Четырёхскатная крыша: придаёт дому выразительность, обеспечивает надёжную защиту от осадков и устойчивость к ветровым нагрузкам.
  • Фасад из сайдинга: современные материалы в сочетании с классической цветовой гаммой подчеркивают элегантность, а сайдинг гарантирует долговечность и простоту в уходе.
  • Крыльцо с навесом: просторное и удобное, создаёт гостеприимный вход и защищает от дождя или снега.
  • Большие окна: панорамное остекление (без витражей) наполняет интерьер естественным светом, сохраняя приватность и тепло.
  • Качественная входная дверь: надёжная металлическая дверь с терморазрывом обеспечивает безопасность и снижает теплопотери.

Планировка и интерьер

1. Просторная кухня-гостиная

   Сердце дома — объединённое пространство кухни и гостиной. Идеально подходит для семейных обедов, приёма гостей и отдыха.

2. Две просторные комнаты

   Спальни или кабинеты с большими окнами, рассчитанные на комфортное размещение мебели и личного пространства.

3. Техническое помещение

   Отдельная зона для котельной, бойлера, систем хранения или мастерской.

4. Раздельный санузел

   Удобство для семьи: просторная ванная комната и туалет расположены отдельно.

5. Гардеробная

   Встроенное решение для хранения вещей, оптимизирующее пространство.

Преимущества технологии

  • СИП-панели: быстрый монтаж, высокая энергоэффективность (снижение расходов на отопление), экологичность.
  • Адаптивность: проект легко модифицируется под потребности заказчика (изменение размеров, перепланировка).
  • Сроки строительства: готовность под ключ за 2-3 месяца.

Дом "Классик" — это выбор для тех, кто ценит традиционную эстетику, но не готов жертвовать современным комфортом. Просторные помещения, продуманная планировка и качественные материалы делают его идеальным для постоянного проживания или загородного отдыха. Проект подходит для семьи из 3-4 человек, а благодаря прочности конструкции и сайдинговому фасаду дом сохранит привлекательность на десятилетия.

Стоимость домокомплекта 2 570 000 рублей

Вас может заинтересовать
Вас может заинтересовать

Выбор местоположения

Задать вопрос / написать нам

E-mail: domgis@mail.ru

Мы свяжемся с Вами в течение дня.

Тех. поддержка
Предмет обращения:
Тукущая страница

Мы свяжемся с Вами в течение дня.

Обратный звонок
Обратный звонок
Выберите ваш город
Пожаловаться

Объявление опубликовано.
Изменения сохранены

Период публикации - бессрочный, при условии подтверждения актуальности каждые 50 дней. Уведомления будут отправляться на Вашу электронную почту.

Выберите причину снятия с публикации

Снятые с публикации объявления не участвуют в поиске и недоступны для подробного просмотра.

Для повторной публикации нажмите «Вернуть в публикацию»