ModernHouse 50.3 №609

Цена строительства от 5 080 000 ₽* * Стоимость не является окончательной
Заявка на консультацию
  • Общая площадь 77 м2
  • Длина 9.1 м
  • Ширина 10.8 м
  • Материал стен Каркас
  • Количество этажей 1
  • Подвал Нет
  • Мансарда без мансарды
  • Гараж Нет
  • Терраса Да
  • Проживание Круглогодичное
  • Количество комнат 2
  • Количество спален 1
  • Количество санузлов 1
  • Вид проекта дом
  • Застройщик Модуль Дом 54
  • Отделка фасада Обшивка деревом
  • Крыша Плоская
  • Можно купить домокомплект Нет
  • Модульный тип строения Да
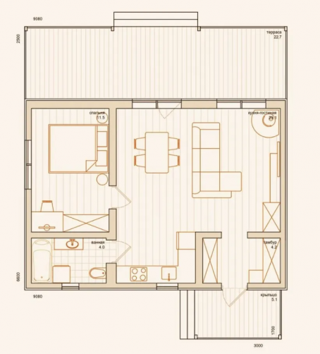
Планировки
Описание проекта

Дом для семьи из трех человек с просторной открытой террасой (22,7 м2). На входе в здание предусмотрен небольшой тамбур, где удобно хранить верхнюю одежду и уличную обувь.

Вас может заинтересовать
Вас может заинтересовать

Выбор местоположения

Задать вопрос / написать нам

E-mail: domgis@mail.ru

Мы свяжемся с Вами в течение дня.

Тех. поддержка
Предмет обращения:
Тукущая страница

Мы свяжемся с Вами в течение дня.

Обратный звонок
Обратный звонок
Выберите ваш город
Пожаловаться

Объявление опубликовано.
Изменения сохранены

Период публикации - бессрочный, при условии подтверждения актуальности каждые 50 дней. Уведомления будут отправляться на Вашу электронную почту.

Выберите причину снятия с публикации

Снятые с публикации объявления не участвуют в поиске и недоступны для подробного просмотра.

Для повторной публикации нажмите «Вернуть в публикацию»