Смарт 144 №519

Цена строительства от 8 106 000 ₽* * Стоимость не является окончательной
Заявка на консультацию
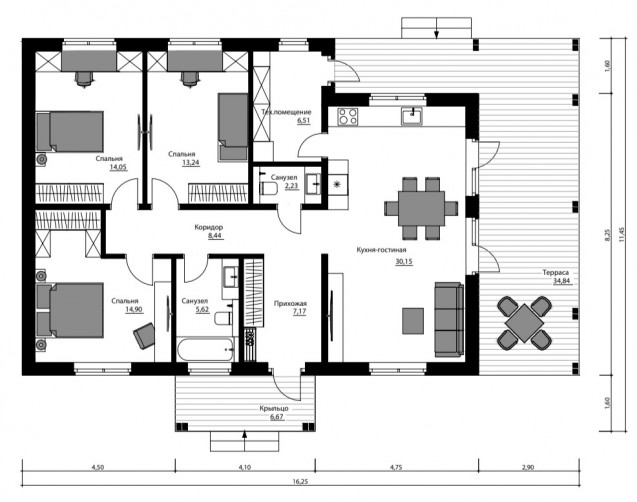
  • Общая площадь 144 м2
  • Длина 16.25 м
  • Ширина 11.45 м
  • Материал стен Каркас
  • Количество этажей 1
  • Подвал Нет
  • Мансарда без мансарды
  • Гараж Нет
  • Терраса Да
  • Проживание Круглогодичное
  • Количество комнат 4
  • Количество спален 3
  • Количество санузлов 2
  • Вид проекта дом
  • Застройщик Шестаков Дом
  • Архитектурный стиль Американский
  • Отделка фасада Обшивка деревом
  • Крыша Двускатная
  • Можно купить домокомплект Да
  • Модульный тип строения Нет
Планировки
Описание проекта

Это преднапиленный конструктор дома, который включает в себя прежде всего комплект для сборки деревянного каркаса, состоящий из нескольких элементов:

■ Сращенная строганная доска

■ Стойки

■ Обвязки

■ Ригели

■ Лаги

■ Балки

■ Стропила, прогоны и пр.

Просторный и стильный дом площадью 144 м2, где каждая деталь продумана для вашего комфорта. Главная изюминка — мастер-спальня с гардеробной, создающая уютное приватное пространство.

Две дополнительные спальни, светлая кухня-гостиная и просторная прихожая формируют гармоничное пространство для жизни. Два санузла и техническое помещение добавляют удобства, а уютная терраса станет идеальным местом для отдыха на свежем воздухе.

Вас может заинтересовать
Вас может заинтересовать

Выбор местоположения

Задать вопрос / написать нам

E-mail: domgis@mail.ru

Мы свяжемся с Вами в течение дня.

Тех. поддержка
Предмет обращения:
Тукущая страница

Мы свяжемся с Вами в течение дня.

Обратный звонок
Обратный звонок
Выберите ваш город
Пожаловаться

Объявление опубликовано.
Изменения сохранены

Период публикации - бессрочный, при условии подтверждения актуальности каждые 50 дней. Уведомления будут отправляться на Вашу электронную почту.

Выберите причину снятия с публикации

Снятые с публикации объявления не участвуют в поиске и недоступны для подробного просмотра.

Для повторной публикации нажмите «Вернуть в публикацию»