КХ-12 с эркером в гостиной №372

Цена строительства от 0 ₽* * Стоимость не является окончательной
Заявка на консультацию
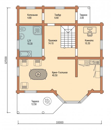
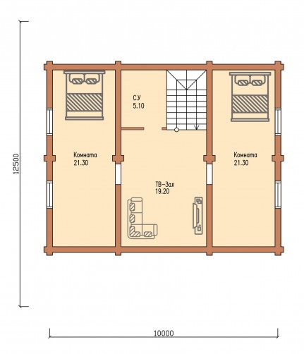
  • Общая площадь 154 м2
  • Длина 10 м
  • Ширина 12.5 м
  • Материал стен Профилированный брус
  • Количество этажей 2
  • Подвал Нет
  • Мансарда Имеется
  • Гараж Нет
  • Терраса Да
  • Проживание Круглогодичное
  • Количество комнат 5
  • Количество спален 3
  • Количество санузлов 1
  • Вид проекта дом
  • Застройщик Комель House
  • Архитектурный стиль Классический
  • Крыша Двускатная
  • Можно купить домокомплект Да
  • Модульный тип строения Нет
Планировки
Описание проекта

Домокомплект может быть изготовлен из бруса или бревна любого сечения.

Вас может заинтересовать
Вас может заинтересовать

Выбор местоположения

Задать вопрос / написать нам

E-mail: domgis@mail.ru

Мы свяжемся с Вами в течение дня.

Тех. поддержка
Предмет обращения:
Тукущая страница

Мы свяжемся с Вами в течение дня.

Уведомление
Предмет обращения:
Тукущая страница
Обратный звонок
Обратный звонок
Выберите ваш город
Пожаловаться

Объявление опубликовано.
Изменения сохранены

Период публикации - бессрочный, при условии подтверждения актуальности каждые 50 дней. Уведомления будут отправляться на Вашу электронную почту.

Выберите причину снятия с публикации

Снятые с публикации объявления не участвуют в поиске и недоступны для подробного просмотра.

Для повторной публикации нажмите «Вернуть в публикацию»