Давинчи №99

Цена строительства от 5 500 000 ₽* * Стоимость не является окончательной
Заявка на консультацию
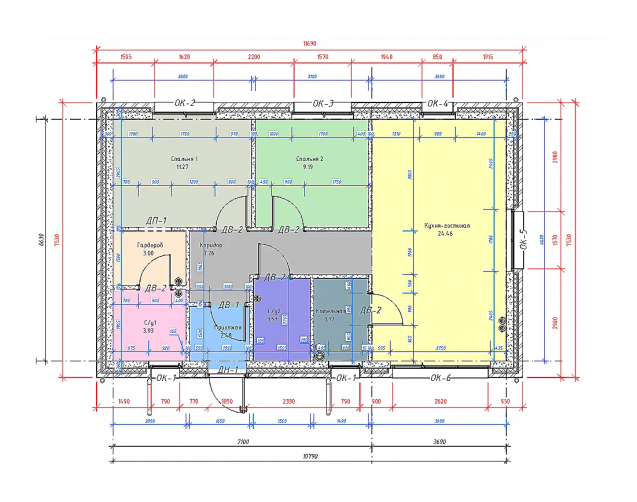
  • Общая площадь 88 м2
  • Длина 11.69 м
  • Ширина 7.53 м
  • Материал стен Каркас
  • Количество этажей 1
  • Подвал Нет
  • Мансарда без мансарды
  • Гараж Нет
  • Терраса Нет
  • Проживание Круглогодичное
  • Количество комнат 3
  • Количество спален 2
  • Количество санузлов 2
  • Вид проекта дом
  • Застройщик Мозаика
  • Отделка фасада Штукатурка
  • Крыша Двускатная
  • Можно купить домокомплект Нет
  • Модульный тип строения Нет
Планировки
Описание проекта

Откройте для себя идеальное сочетание надежности и уюта с проектом ДаВинчи — прочным и долговечным решением для комфортной жизни за городом. Этот стильный дом с двумя спальнями и просторной кухней-гостиной станет Вашим личным оазисом, где каждая деталь продумана для Вашего удобства. Благодаря использованию современных материалов, таких как Сибит и кирпич, мы обеспечили высокую теплоизоляцию, надежность и эстетическую привлекательность. Просторная кухня-гостиная создаст идеальные условия для семейных вечеров и встреч с друзьями, а две уютные спальни подарят комфорт и спокойствие.

Этот дом — отличный выбор для тех, кто ценит качество, долговечность и современный дизайн.

Свяжитесь с нами сегодня и сделайте шаг к своему будущему уютному дому!

Теплый контур 5.500.000 р., предчистовая 7.100.000 р.

Вас может заинтересовать
Вас может заинтересовать

Выбор местоположения

Задать вопрос / написать нам

E-mail: domgis@mail.ru

Мы свяжемся с Вами в течение дня.

Тех. поддержка
Предмет обращения:
Тукущая страница

Мы свяжемся с Вами в течение дня.

Уведомление
Предмет обращения:
Тукущая страница
Обратный звонок
Обратный звонок
Выберите ваш город
Пожаловаться

Объявление опубликовано.
Изменения сохранены

Период публикации - бессрочный, при условии подтверждения актуальности каждые 50 дней. Уведомления будут отправляться на Вашу электронную почту.

Выберите причину снятия с публикации

Снятые с публикации объявления не участвуют в поиске и недоступны для подробного просмотра.

Для повторной публикации нажмите «Вернуть в публикацию»